Studio 1 + 2

Spazio di 300 m² per shooting fotografici e produzioni video

Date / Ora

Dotazioni

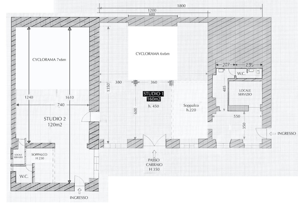
Lo Studio 1 e Studio 2 per produzioni fino a 40/45 persone per una superficie totale di 300 m2.
In questo spazio sono presenti, 2 limbi in muratura di cui uno a semi-uovo in cui la luce gira molto bene grazie alla curva di raccordo sulla parete di sx; entrambi con una superficie calpestabile di 36 m² , per poter realizzare due set completamente indipendenti, senza invasioni di luce ma comunicanti. Il soffitto è alto 4,5 metri, la pavimentazione è in parquet industriale, una grande parete della location è realizzata effetto cemento grezzo, utilizzabile come background. L'accesso è diretto dal cortile tramite un portone dal quale possono passare grandi elementi scenografici.
Studio 1 Studio fotografico Santaveronica

I nostri Spazi

Studio 1

scopri

Studio 2

scopri

Studio 3

scopri